Refine Search

3951 SW Badger Avenue, Lot #Lot 2, Redmond, OR 97756

$125,000
  • 3951 SW Badger Avenue, Lot #Lot 2, Redmond, OR 97756 Main Photo

4 Total Photos [Click to View All]

Active
LOT SIZE 0.080 acres MLS#220214598
STATUSActive PROPERTY TYPELand - Residential SUBDIVISIONOwen Ridge

Property Description

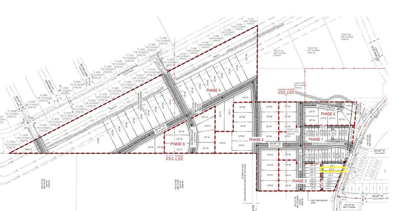
Townhome lot?ideal for investors or those seeking multi-unit ownership. Both single-level & 2-level plans available or bring your own builder. SHOVEL READY w/ utilities stubbed at lot. Owen Ridge is a new neighborhood in desirable SW Redmond is featuring beautiful mountain views and located just blocks from coffee shops, gelato, a brewery restaurant, schools, and only a short distance to golf, the airport, shopping, and Bend side of town. Construction is underway on single-family homes, single & two-level townhomes. Dont miss this exceptional investment opportunity! This lot is lot #2 of 4 adjoining lots. Listing Agent related to Seller.

3951 SW Badger Avenue, Unit Lot 2 | MLS# 220214598

This land located at 3951 SW Badger Avenue, Unit Lot 2, Redmond, OR 97756 is currently listed for sale with an asking price of $125,000. The property has approximately 0.08 Acres. Search Redmond real estate on www.fnrhomes.com today.

Property Features

Property Type: Land - Residential
Garage: 2
Lot Size: 0.08 Acres
Taxes: $0

Feature Descriptions

Sewer: Public Sewer
Special View Info: Cascade Mountains, Neighborhood

Local Schools

High School: Ridgeview
Middle School: Obsidian
Elementary School: Sage

Listed By / Shown By

Listed By

Agency Name: Keller Williams Realty Central Oregon

Shown By

Agency Title: Fisher-Nicholson Realty LLC
Agency Phone: 800-460-8124

IDX logo

Estimate Your Payment

Estimated Payment

$ 710.18 per month $673.72 Principal & Interest $0.00 Property Tax (data not provided by mls) $36.46 Homeowner's Insurance

Change Payment Information

%
years/fixed
yearly
yearly (est.)
(Payments are an estimate and may vary by lender)

Login to My Homefinder

Pixel